Dům s podkrovím A+(4+kk)
Je úžasné, jaký rozdíl vykouzlí pár metrů navíc. Oblíbený projekt Dům s podkrovím A jsme zvětšili o 8 metrů čtverečních a rázem přibylo místo pro spíž a koupelnu v přízemí a pro šatnu v patře. Navíc se zvýšila i plocha obytné místnosti, a tedy narostl prostor, na němž se odehrává každodenní rodinný život. Přitom jde stále o malý rodinný domek, který se snadno uklízí, je energeticky nenáročný a vejde se na malý pozemek.
Ke stažení: KATALOG STAVBY Dům s podkrovím A+
PLOCHA
| zastavěná plocha | 63,3 m2 |
| užitná plocha | 90,4 m2 |
| obytná plocha | 64,4 m2 |
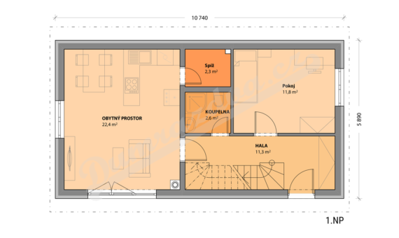
DISPOZICE DOMU
4+KK
Přízemí – Vstupní hala, obytný prostor s kuchyní a se vstupem na terasu, pokoj, technická místnost s toaletou, sklad
Patro – Hala, 2 pokoje, koupelna
VSTUP NA ZAHRADU
francouzské okno
FASÁDA
kombinace standardní fasády a palubkového obkladu
STŘECHA
35 stupňů, sedlová s přesahy do boků domu
PROJEKT K DOMU ZDARMA
Vypracujeme projekt pro povolení stavby a pomůžeme vám se stavebním řízením.
| hrubá stavba | 2 110 500 Kč |
| stavba k dokončení | 3 744 900 Kč |
| stavba na klíč | 4 104 600 Kč |
Uvedené ceny jsou bez DPH. Nezahrnují základovou desku ani hydroizolaci a platí pro standardní provedení dřevostavby.
DOPRAVA DO 50 KM ZDARMA.KLIENTSKÉ ÚPRAVY
Přejete si jen trochu jinou střechu, okna nebo fasádu? Nabízíme i další varianty, pro které vám po dohodě vypracujeme přesnou individuální kalkulaci. Rádi přizpůsobíme náš projekt vašim představám nebo požadavkům místních předpisů. K domu přistavíme pergolu, garážové stání nebo terasu.
Podobné projekty z naší nabídky
KONTAKTUJTE NÁS
Zaujala vás tato dřevostavba?
Napište nám nezávaznou poptávku - rádi zodpovíme vaše dotazy.